Property Description
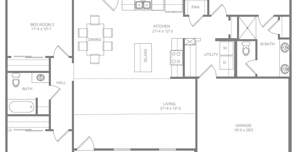
This thoughtfully designed 1,453 SF home offers 3 bedrooms and 2 baths with the kind of finishes that make everyday living feel a little more special. Spacious 9' ceilings flow through the home and the living room's cathedral ceiling creates an open space for a warm, and lively atmosphere. The master suite is your personal retreat, complete with a spacious walk-in closet and a beautifully tiled shower.
Outside you will find two covered porches — a 147 SF front porch perfect for morning coffee and a generous 275 SF back porch made for entertaining. Add a 405 SF garage and central heat & air, and you've got comfort and convenience covered from every angle.
This home is still under construction and nearing completion. It has been virtually staged and landscaped to represent the final construction.
Square Footage Breakdown
1,453 SF heated / cooled space
147 SF covered front porch
275 SF covered back porch
405 SF garage
2,280 SF Total
The Horizon Hills Subdivision offers the perfect balance of a peaceful community and city convenience. Here, you will be just 15 minutes away from downtown Cookeville. Close enough to enjoy everything Cookeville has to offer — shopping, dining, and more — without the noise and hustle of a busy highway or the interstate.
Southern Hills Golf & Country Club (5 minutes / 3.1 miles)
Park View Elementary School (8 minutes / 5.7 miles)
Target (8 minutes / 5.7 miles)
Home Depot (8 minutes / 5.7 miles)
I-40 (8 minutes / 5.8 miles)
Burgess Falls State Park (9 minutes / 5.8 miles)
Restaurant row (10 minutes / 7 miles)
Cane Creek Park (13 minutes / 8.2 miles)
Sams Club (13 minutes / 7.7 miles)
Tennessee Tech University (14 minutes / 8.7 miles)
Walmart (14 minutes / 8.2 miles)
Cookeville Regional Medical Center (14 minutes / 8.6 miles)
Rock Island state Park (33 minutes / 23.3 miles)
Fall Creek Falls State Park (48 minutes / 40.3 miles)
Property Details
Property Type
Single Family Home
Bedrooms
3
Bathrooms
2
Size
1,453 sf
Floors
1
Year Built
2026
Property Location
3034 Ditty Rd, Cookeville, TN 38506, USA




